專門製造,供應和出口水位開關,工廠位於Taiwan。客戶的滿意度由產品的質量和我們的承諾決定。我們一向專注於製造高品質產品,按時交貨並提供優質的售後服務。我們具有創新精神,配備最先進的生產檢測設備來製造各類產品。歡迎來自全球的批發商,分銷商,採購商,代理商和產品OEM/ODM來函來電垂詢。

水位開關

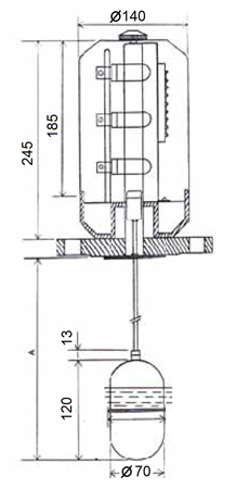
產品規格:
1。開關點: 1~6分
2。從每一個點到另一個的距離:15毫米(最小)
3。高和低的水平之間的最大距離:170毫米
4。外殼材料:鋁合金
5。最大.壓力:25千克/cm²
6。最大.溫度。: 0~250°C
7。法蘭材質:SUS304
8。浮法材料:SUS304
9。浮球尺寸: ψ70×120
10。聯繫輸出:AC250V,1A
11。連接類型:ANSI150,ANSI300,JIS10K,JIS20K,JSI30K
12。連接尺寸:1“,2”,3“
浮球液位開關是專為蒸汽鍋爐和其他船隻和儲罐的浮動水平的變化取決於一個安裝磁鐵幻燈片的水位控制.它是連接到進料泵,信號裝置或燃料供給。
浮球內的磁鐵在壓力管的垂直運動同時驅動的二級和開關的磁鐵內的切換機構,操作的聯繫方式。
該磁體系統使浮球內的磁鐵,通過開關和驅動開關機制在其他層面.被致動的開關機制,將不復位,直到浮子磁鐵驅動的開關機構上的電平下降。
float或置換驅動不銹鋼護套永磁無腺體壓力管中的浮子桿.隨著浮子的上升和下降,與不斷變化的液位浮子組件內的壓力管向上移動。
產品展示 產品列表
- 首頁 -> 產品展示 -> 電平指示器 : LIC/LIT Series
- 首頁 -> 產品展示 -> 透明液位計 : Reflex & Transparent Level Gauge
- 首頁 -> 產品展示 -> 管式液位計 : TUBULAR LEVEL GAUGES
- 首頁 -> 產品展示 -> 管式液位計 : DLG
- 首頁 -> 產品展示 -> 水位開關 : FLS
- 首頁 -> 產品展示 -> 旋式料位開關 : RX10 Level Switch
- 首頁 -> 產品展示 -> 水位控制器 : YJ-Cloud Controller
- 首頁 -> 產品展示 -> 無線水位控制器 : WLC
我們的專業知識保證我們優質的
















