
Muda o nível de água

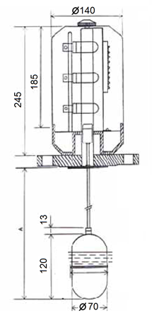
Especificações:
1.Mudar Ponto: 1~6 Pontos
2.Distância de cada ponto para outro:15 milímetros (mínimo)
3.A distância máxima entre o alto eo baixo nível:170 milímetros
4.Material da caixa:Liga de alumínio
5.Max.Pressão:25 kg/cm²
6.Max.Temp.: 0~250°C
7.Flange material:SUS304
8.Flutuar material:SUS304
9.Flutuar Tamanho: ψ70 x 120
10.Contato de saída:AC250V, 1A
11.Tipo de conexão:ANSI150, ANSI300, JIS10K, JIS20K, JSI30K
12.Tamanho da Conexão:1 ", 2", 3 "
Interruptor de nível do flutuador são projetados para o controle do nível de água em caldeiras de vapor e outros navios e tanques de armazenamento de um carro alegórico com um ímã lâminas montadas em acordo com a mudança de nível.Ele é conectado para alimentar a bomba, unidade de sinal ou de abastecimento de combustível.
O movimento vertical do magneto do flutuador no tubo de pressão actua simultaneamente os imans secundárias e interruptor no mecanismo de comutação, para operar os contactos.
Este sistema permite que o ímã ímã flutuante para passar o interruptor e acionar mecanismos de comutação em outros níveis.Mecanismos de comutação que são acionados não irá repor até o ímã flutuador aciona o mecanismo interruptor em um nível cair.
O flutuador ou bóia acciona um aço inoxidável revestido de íman permanente montado na haste do flutuador no tubo de pressão do rotor húmido.À medida que a bóia sobe e desce, com um nível de líquido de trocar o conjunto bóia se move para cima no interior do tubo de pressão.
- Início -> Produtos -> Indicador de Nível : LIC/LIT Series
- Início -> Produtos -> Medidor de Nível transparente : Reflex & Transparent Level Gauge
- Início -> Produtos -> Medidor de Nível Tubular : TUBULAR LEVEL GAUGES
- Início -> Produtos -> Medidor de Nível Tipo Tubular : DLG
- Início -> Produtos -> Muda o nível de água : FLS
- Início -> Produtos -> Troca Nível Paddle Rotary : RX10 Level Switch
- Início -> Produtos -> Controlador de nível de água : YJ-Cloud Controller
- Início -> Produtos -> Controlador de nível de água sem fio : WLC
















